詳情介紹:
技術參數
| 1、工作壓力:0.6MPa | 6、反洗水耗:1~30% |
| 2、試驗壓力:0.75MPa | 7、懸浮物去除率:85~96% |
| 3、運行流速:30m/h |
8、濁度: 粗濾:進水≤100mg/L,出水≤10mg/L 精濾:進水≤20mg/L, 出水≤2mg/L 二級串聯:進水≤100mg/L,出水≤2mg/L |
| 4、反洗強度:0.5m3/min/m2 | |
| 5、反洗時間:20~30min |
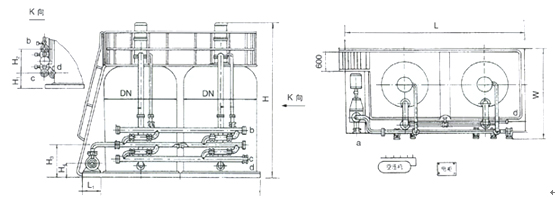
尺寸及參數表 串聯自動(手動)纖維球高效過濾器外形尺寸表
| 型 號 | 組合 形式 | 出力 (t/h) | DN | H | H1 | H2 | Hs | H4 |
W (手動) |
L | L1 |
外形尺寸m (長×寬×高) |
| GXFQ-800/15 | 自動 | 15 | 800 | 4068 | 420 | 720 | 780 | 332 | 1570 | 2850 | 225 | 3.3x1.7x4.07 |
| 手動 | 3.3x1.6x4.07 | |||||||||||
| GXFQ-1000/20 | 自動 | 20 | 1000 | 4205 | 420 | 720 | 780 | 360 | 1630 | 3090 | 225 | 3.5x1.8x4.25 |
| 手動 | 3.5x1.7x4.25 | |||||||||||
| GXFQ-1200/30 | 自動 | 30 | 1200 | 4575 | 540 | 800 | 940 | 380 | 1840 | 3450 | 225 | 3.9x2x4.6 |
| 手動 | 3.9x1.8x4.6 | |||||||||||
| GXFQ-1600/60 | 自動 | 60 | 1600 | 4838 | 650 | 1000 | 1150 | 545 | 2330 | 4410 | 305 | 4.7x2.4x4.9 |
| 手動 | 4.7x2.4x4.9 | |||||||||||
| GXFQ-2000/90 | 自動 | 90 | 2000 | 4800 | 474 | 1060 | 1004 | 595 | 2830 | 5260 | 330 | 5.1x3.8x4.8 |
| 手動 | 5.14x2.83x4.8 | |||||||||||
| GXFQ-2400/130 | 自動 | 130 | 2400 | 5180 | 389 | 1200 | 989 | 630 | 3250 | 6130 | 365 | 6x3.4x5.18 |
| 手動 | 6x3.25x5.18 | |||||||||||
| GXFQ-2600/160 | 自動 | 160 | 2600 | 5274 | 394 | 1320 | 1054 | 630 | 3560 | 6530 | 365 | 6.41x3.61x5.27 |
| 手動 | 6.41x3.51x5.27 | |||||||||||
| GXFQ-2800/180 | 自動 | 180 | 2800 | 5414 | 450 | 1700 | 1300 | 670 | 3697 | 6930 | 365 | 6.81x3.89x5.4 |
| 手動 | 6.81x3.67x5.4 | |||||||||||
| GXFQ-3000/210 | 自動 | 210 | 3000 | 5514 | 450 | 1700 | 1300 | 670 | 3847 | 7330 | 365 | 7.21x4.04x5.5 |
| 手動 | 7.21x3.82x5.5 |
串聯自動(手動)纖維球高效過濾器相關參數表
| 型 號 | 電機功率(kw) | a | b | c | d |
地基截荷 (kg/m2) |
備 注 | |||
| 水泵 | 攪拌機 | 空壓機 | ||||||||
| GXFQ-800/15 | 7.5 | 4x2 | 5.5 | DN65 | DN50 | DN50 | DN32 | 自動 | 1800 |
法蘭標準為 GB/T9119 -2000PN1.0
a-進水管口 |
| (自動) | 手動 | 1800 | ||||||||
| GXFQ-1000/20 | 7.5 | 4x2 | 5.5 | DN65 | DN65 | DN65 | DN32 | 自動 | 2100 | |
| (自動) | 手動 | 2000 | ||||||||
| GXFQ-1200/30 | 7.5 | 4x2 | 5.5 | DN80 | DN80 | DN80 | DN32 | 自動 | 2300 | |
| (自動) | 手動 | 2300 | ||||||||
| GXFQ-1600/60 | 15 | 7.5x2 | 5.5 | DN100 | DN100 | DN100 | DN32 | 自動 | 2400 | |
| (自動) | 手動 | 2400 | ||||||||
| GXFQ-2000/90 | 22 | 15x2 | 5.5 | DN125 | DN125 | DN125 | DN32 | 自動 | 2600 | |
| (自動) | 手動 | 2600 | ||||||||
| GXFQ-2400/130 | 45 | 18.5x2 | 5.5 | DN150 | DN150 | DN150 | DN40 | 自動 | 2800 | |
| (自動) | 手動 | 2800 | ||||||||
| GXFQ-2600/160 | 45 | 22x2 | 5.5 | DN150 | DN150 | DN150 | DN40 | 自動 | 2100 | |
| (自動) | 手動 | 2200 | ||||||||
| GXFQ-2800/180 | 45 | 22x2 | 5.5 | DN200 | DN200 | DN200 | DN40 | 自動 | 2200 | |
| (自動) | 手動 | 2300 | ||||||||
| GXFQ-3000/210 | 45 | 22x2 | 5.5 | DN200 | DN200 | DN200 | DN40 | 自動 | 2300 | |
| (自動) | 手動 | 2500 | ||||||||
并聯自動(手動)纖維球高效過濾器相關參數表型號
| 組合 形式 | 出力 (t/h) | DN | H | H1 | H2 | H3 | H4 |
W (自動) |
L | L1 |
外形尺寸m (長×寬×高) |
|
| CTGXFB-800/30 | 自動 | 30 | 800 | 4068 | 420 | 720 | 780 | 332 | 1640 | 2850 | 225 | 3.3x1.7x4.07 |
| 手動 | 3.3x1.6x4.07 | |||||||||||
| CTGXFB-1000/40 | 自動 | 40 | 1000 | 4205 | 420 | 720 | 780 | 360 | 1710 | 3090 | 225 | 3.5x1.8x4.25 |
| 手動 | 3.5x1.7x4.25 | |||||||||||
| CTGXFB-1200/60 | 自動 | 60 | 1200 | 4575 | 540 | 800 | 940 | 380 | 1990 | 3450 | 225 | 3.9x2x4.6 |
| 手動 | 3.9x1.8x4.6 | |||||||||||
| CTGXFB-1600/120 | 自動 | 120 | 1600 | 4838 | 650 | 1000 | 1150 | 545 | 2480 | 4410 | 305 | 4.9x2.4x4.9 |
| 手動 | 4.9x2.3x4.9 | |||||||||||
| CTGXFB-2000/180 | 自動 | 180 | 2000 | 4800 | 474 | 1060 | 1004 | 595 | 3050 | 5260 | 330 | 5.26x3.05x4.8 |
| 手動 | 5.26x2.83x4.8 | |||||||||||
| CTGXFB- 2400/260 | 自動 | 260 | 2400 | 5180 | 389 | 1200 | 989 | 630 | 3400 | 6130 | 365 | 6.13x3.4x5.18 |
| 手動 | 6.13x3.25x5.l8 | |||||||||||
| CTGXFB-2600/320 | 自動 | 320 | 2600 | 5274 | 394 | 1320 | 1054 | 630 | 3672 | 6530 | 365 | 6.53x2.67x5.27 |
| 手動 | 6.53x3.56x5.27 | |||||||||||
| CTGXFB-2800/360 | 自動 | 360 | 2800 | 5414 | 450 | 1700 | 1300 | 670 | 3972 | 6930 | 365 | 6.93x3.97x5.41 |
| 手動 | 6.93x3.69x5.41 | |||||||||||
| CTGXFB-3000/420 | 自動 | 420 | 3000 | 5514 | 450 | 1700 | 1300 | 670 | 4122 | 7330 | 365 | 7.33x4.12x5.51 |
| 手動 | 7.33x3.85x5.51 |
并聯自動(手動)纖維球高效過濾器相關參數表
| 型 號 | 電機功率(kw) | a | b | c | d |
地基截荷 (kg/m2) |
備 注 | |||
| 水泵 | 攪拌機 | 空壓機 | ||||||||
| CTGXFB-800/30 | 7.5 | 4x2 | 5.5 (自動) | DN80 | DN80 | DN80 | DN32 | 自動 | 1800 |
法蘭標準為 GB/T9119 -2000PN1.0 a-進水管口 b-反洗出水管口 c-出水管口 d-溢流及放空管口 |
| 于動 | 1800 | |||||||||
| CTGXFB-1000/40 | 7.5 | 4x2 | 5.5 (自動) | DN80 | DN80 | DNl00 | DN32 | 自動 | 2200 | |
| 手動 | 2100 | |||||||||
| CTGXFB-1200/60 | 7.5 | 4x2 | 5.5 (自動) | DNl00 | DNl00 | DN150 | DN32 | 自動 | 2300 | |
| 手動 | 2300 | |||||||||
| CTGXFB-1600/120 | 15 | 7.5x2 | 5.5 (自動) | DN150 | DN150 | DN200 | DN32 | 自動 | 2400 | |
| 手動 | 2400 | |||||||||
| CTGXFB-2000/180 | 30 | 15x2 | 5.5 (自動) | DN200 | DN200 | DN200 | DN32 | 自動 | 2600 | |
| 手動 | 2600 | |||||||||
| CTGXFB-2400/260 | 55 | 18.5x2 | 5.5 (自動) | DN200 | DN200 | DN150 | DN40 | 自動 | 2800 | |
| 手動 | 2800 | |||||||||
| CTGXFB-2600/320 | 55 | 22x2 | 5.5 (自動) | DN250 | DN200 | DN250 | DN40 | 自動 | 2000 | |
| 手動 | 2000 | |||||||||
| CTGXFB-2800/360 | 55 | 22x2 | 5.5 (自動) | DN250 | DN200 | DN250 | DN40 | 自動 | 2000 | |
| 手動 | 2300 | |||||||||
| CTGXFB-3000/420 | 55 | 22x2 | 5.5 (自動) | DN250 | DN200 | DN250 | DN40 | 自動 | 2200 | |
| 手動 | 2300 | |||||||||
單臺外形尺寸

Ф800-Ф1600系列設備外形圖

Ф2000-Ф3000系列設備外形圖
| 型號 | 出力(t/ h) | DN | H | H1 | H2 | H3 | H4 | H5 | Ф | L | L1 | L2 | L3 | n-d | 功率 (kw) | 地基截荷 (t/m2) |
| GXF-800/15 | 15 | 800 | 2866 | 1062 | 350 | 70 | 140 | 100 | 1000 |
|
300 | 265 | 120 | 4-18 | 4 | 3.2 |
| GXF-1000/20 | 20 | 1000 | 3000 | 1065 | 400 | 75 | 80 | 100 | 1240 |
|
300 | 235 | 120 | 4-18 | 4 | 2.9 |
| GXF-1200/30 | 30 | 1200 | 3280 | 1141 | 500 | 150 | 200 | 150 | 1432 |
|
350 | 276 | 120 | 4-22 | 4 | 3.2 I~ |
| GXF-1600/60 | 60 | 1600 | 3480 | 1180 | 500 | 150 | 140 | 120 | 1850 |
|
350 | 263 | 120 | 4-22 | 7.5 | 3.1 |
| GXF-2000/90 | 90 | 2000 | 3645 | 980 | 190 | 150 | 90 | 120 | 2100 | 150 | 450 | 350 | 120 | 8-30 | 15 | 4.2 |
| GXF-2400/130 | 130 | 2400 | 3970 | 1036 | 215 | 150 | 140 | 120 | 2500 | 150 | 450 | 370 | 120 | 8-30 | 18.5 | 4.3 |
| XF-2600/160 | 160 | 2600 | 4070 | 1030 | 190 | 150 | 140 | 120 | 2700 | 150 | 450 | 389 | 120 | 8-36 | 22 | 4.4 |
| XF-2800/180 | 180 | 2800 | 4170 | 1030 | 260 | 150 | 140 | 120 | 2900 | 150 | 450 | 389 | 120 | 8-36 | 22 | 4.7 |
| XF-3000/210 | 210 | 3000 | 4270 | 1030 | 260 | 150 | 120 | 140 | 3100 | 150 | 450 | 389 | 120 | 8-36 | 22 | 4.7 |
串、并聯自動(手動)設備外形圖

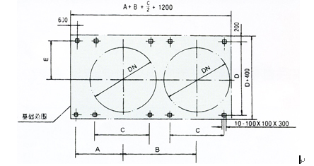
串、并聯自動(手動)纖維球高效過濾器基礎

| DN | A | B | C | D | E | |
| 串聯 | 串聯 | |||||
| 800 | 825 | 825 | 1200 | 600 | 1300 | 520 |
| 1000 | 885 | 885 | 1320 | 660 | 1360 | 520 |
| 1200 | 975 | 975 | 1500 | 900 | 1545 | 602.5 |
| 1600 | 1195 | 1255 | 1900 | 1100 | 1994 | 804 |
| 2000 | 1420 | 1480 | 2300 | 1700 | 2455 | 1065 |
| 2400 | 1680 | 1715 | 2700 | 1900 | 2910 | 1260 |
| 2600 | 1755 | 1815 | 2900 | 2300 | 3170 | 1370 |
| 2800 | 1855 | 1915 | 3100 | 2520 | 3460 | 1460 |
| 3000 | 1955 | 2015 | 3300 | 2700 | 3605 | 1555 |












